ขายด่วนที่ดินเปล่า แปลงสี่เหลียมสวย อยู่ในพื้นที่ชุมชนสาธารณูปโภค ใกล้ถนนหลักเส้น 36 ใกล้วัดหนองผักหนาม หมู่ 4, ตําบลมาบขา อําเภอนิคมพัฒนา จังหวัดระยอง พื้นที่ขนาด 22 ไร่ 3 งาน 90 ตารางวา (เนื้อที่รวม 2 โฉนด) ที่ดิน เหมาะสำหรับ หมู่บ้านจัดสรร โกดังสินค้า ขายราคาถูกเพียง ตารางวาละ 6,250 บาทเท่านั้น หรือไรละ 2.5 ล้านบาทเท่านั้น (พื้นทีจัดสรรใกล้เคียงขายไร่ละ 3.5 ล้านบาท)
ประเภท : ที่ดินเปล่า
สนใจติดต่อ :
Tel : 📞0952328959 /📞0834639519 คุณสรร
Line ID : vghero1978
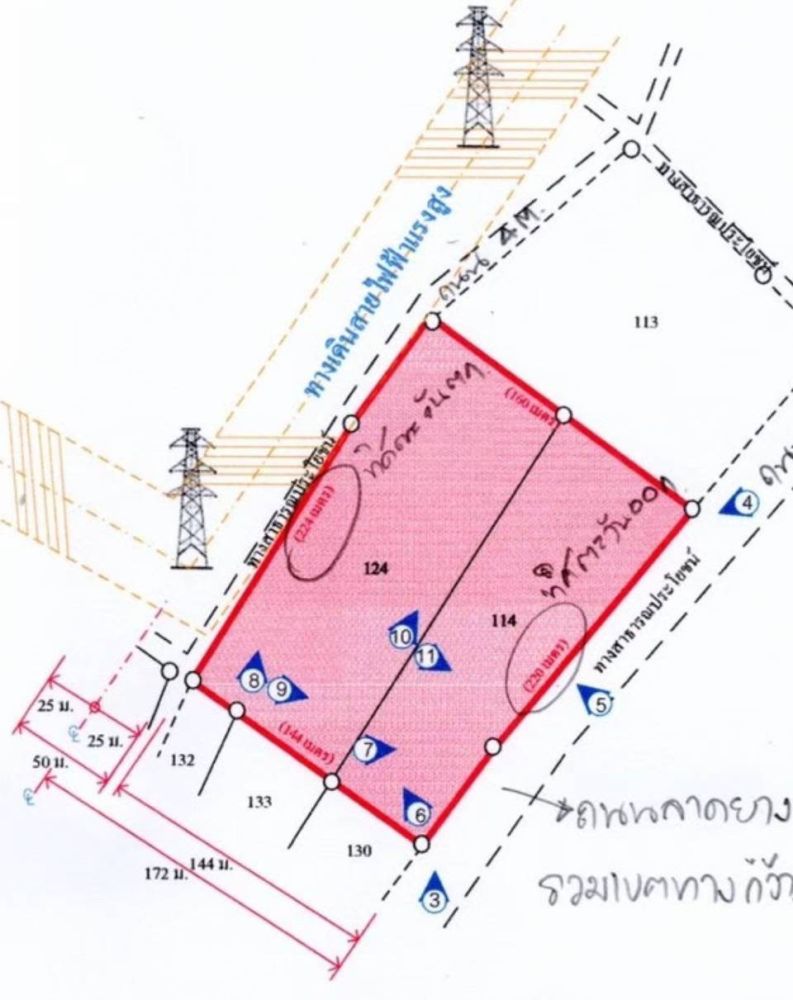
ที่ตั้ง : หมู่ 4, ตําบลมาบขา อําเภอนิคมพัฒนา จังหวัดระยอง
เนื้อที่ : 22 ไร่ 3 งาน 90 ตร.ว.(รวม 2 โฉนด)
ขนาด : หน้ากว้าง 220 เมตร, ลึก 210 เมตร
ทิศ : ตะวันออกเฉียงเหนือ
*จุดเด่น
- อยู่ในย่านชุมชน และแหล่งอำนวยความสะดวก
- หน้ากว้าง 220 เมตร ลึก 210 เมตร
- ใกล้หน่วยงานราชการ
- ห่างจากถนนหลักเส้น 36 เพียง 1 กิโลเมตร
- หน้าแปลงติดถนนดำกว้าง 16 เมตร
*สถานที่ใกล้เคียง
- อยู่ใกล้ วัดหนองผักหนาทนาม 500 เมตร
- อยู่ใกล้ โรงพยาบาลส่งเสริมสุขภาพ 500 เมตร
- อยู่ใกล้ 7-Eleven เพียง 400 เมตร
- อยู่ใกล้ CJ เพียง 300 เมตร
- อยู่ใกล้สวนสมุนไพรสมเด็จพระเทพรัตนราชสุดา เพียง 7 กม.
ค่าใช้จ่ายการโอนฝ่ายละครึ่ง
ราคาไร่ละ : 2,500,000 บาท
ราคายกแปลง : 57,437,500 บาท
รหัสทรัพย์ : L230621A
สนใจติดต่อ : คุณสรร
โทร : โทร. 📞0952328959 /📞0834639519
หรือแอดเลย ที่ ID : vghero1978
ติดต่อเราคลิ๊ก : m.me/Visonproperty2019
FB : 🌐https://www.facebook.com/visonproperty2019
บริการรับฝาก ขาย เช่า บ้านที่ดิน คอนโด และอสังหาริมทรัพย์ทุกชนิด
ในสังกัดสมาคมนายหน้าอสังหาริมทรัพย์ไทย

















