ให้เช่าโกดัง/ออฟฟิศ ต.สวนหลวง อ.กระทุ่มแบน สมุทรสาคร พื้นที่ 1,500 ตร.ม.
Warehouse/office for rent, Suan Luang Subdistrict, Krathum Baen District, Samut Sakhon, area 1,500 sq m.
---------------------------------------------
*ราคาเช่า 180,000 บาท/เดือน
*ประกัน 2 เดือน ล่วงหน้า 1 เดือน
*สัญญาขั้นต่ำ 3 ปี
*รหัสทรัพย์ : PW808
---------------------------------------------
< รายละเอียด >
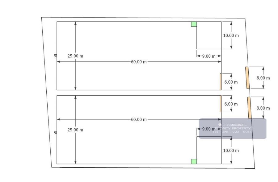
-พื้นที่ใช้สอย 1,500 ตร.ม. ( 25*60 เมตร )
-โกดังสูง 9 เมตร
-ไฟฟ้า 3 เฟส 4 สาย
-รับนํ้าหนักได้ 3-5 ตัน/ตร.ม.
-มีออฟฟิศ 2 ชั้น ( 10*9 เมตร )
-ห้องนํ้าในออฟฟิศ 2 ห้อง ในโกดัง 1 ห้อง
---------------------------------------------
< สนใจติดต่อนัดชมทรัพย์/สอบถามเพิ่มเติม >
Tel : 📞098-9206051 ( ปาย )
Line ID : paiwasan.1996
Email : [email protected]
Facebook Page : 🌐https://www.facebook.com/share/12GmDR3LP3i/
รับชมทรัพย์อื่นๆ : 🌐https://livinginsider.com/public_profile/1/bbfjyC.html
บริการรับฝากและจัดหา คอนโด บ้าน โกดัง โรงงาน อสังหาริมทรัพย์
---------------------------------------------















