ให้เช่าโกดังใหม่ ขนาดใหญ่ | ทำเลดี ใกล้ถนนใหญ่-ทางด่วน
พิกัด - กระทุ่มแบน สมุทรสาคร
เหมาะสำหรับ ศูนย์กระจายสินค้า / โรงงาน / ธุรกิจโลจิสติกส์
—————————————————
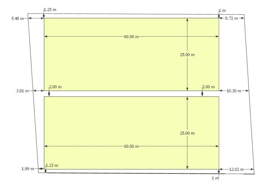
- ขนาดพื้นที่ 25x60 ม. (1,500 ตารางเมตร)
- ออฟฟิศ 2 ชั้น 10x9 ม. ( 90 ตารางเมตร )
- ห้องน้ำ: ออฟฟิศ 2 ห้อง | โรงงาน 1 ห้อง
- พื้นรับน้ำหนัก 3–5 ตัน
- ไฟฟ้า 3 เฟส 4 สาย
- พื้นที่ด้านหน้า 250 ตร.ม. (คางหมู)
- พื้นที่ด้านหลัง 150 ตร.ม. (คางหมู)
- ประตูสูง 3 ม. กว้าง 8 ม.
- กำแพงรั้วสูง 3 ม.
—————————————————
ติดถนนใหญ่ เข้า-ออกง่าย รถบรรทุกเข้าได้สบาย
ใกล้ทางด่วนและเส้นหลัก สะดวกต่อการขนส่งและกระจายสินค้า
—————————————————
ค่าเช่า 180,000 บ./เดือน
สัญญาขั้นต่ำ 3 ปี | มัดจำ 2 ด. + ล่วงหน้า 1 ด.
—————————————————
📞 สนใจนัดดูสถานที่ / สอบถามเพิ่มเติม:
Tel / WhatsApp: 📞061-641-5669 คุณดิว AG
Line ID: due.b
โปรดแจ้งรหัสทรัพย์: DD448
#ให้เช่าโกดัง #โกดังเช่า #โกดังโรงงาน
#โกดังขนาดใหญ่ #โกดังโลจิสติกส์ #glowhouse











