OFF342 ให้เช่าOffice space รามอินทรา 109 (พระยาสุเรนทร์)
มีว่าง 2ตึก สนใจติดต่อ ชลิต 📞0626953642 Line ID: chalit3759
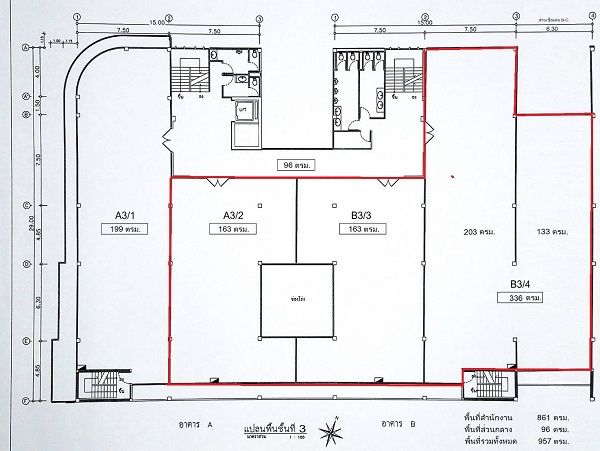
1. ตึก AB ว่างชั้น 3 ทั้ง ชั้น พื้นที่รวม 861 ตรม.
สามารถ แบ่งเช่าได้ตามแปลน)
2. ตึก F (ให้เช่าทั้งชั้น) ว่างชั้น 2-4 ชั้นละ 348 ตรม เงื่อนไขเหมือนกันกับตึก AB
ราคา 360 บาท ต่อ ตรม. ประกัน 2 เดือน + ล่วงหน้า 1 เดือน
ที่จอดรถ 1 คันต่อพื้นที่เช่า 100 ตรม.
(ถ้าเกินสิทธิ์ มีค่าเช่าช่องจอดรายเดือน ในร่มคันละ 1.500บาท กลางแจ้ง 1,000 บาท ,
ค่าไฟ 8.5 บาท/ ยูนิต , ค่าน้ำ เหมาจ่าย หรือพิจารณาจากจำนวนผู้เช่า,
มีค่าบริการลิฟท์ เฉลี่ยกับผู้เช่ารายอื่น \
หากตกลงทำสัญญาผู้เช่านำสัญญาไปชำระอากรแสตมป์ คำนวน ล้านละพัน
สนใจติดต่อ ชลิต 📞0626953642 Line ID: chalit3759
สามารถนัดดูได้ทุกวันยกเว้นวันพุธ
ซอย รามอินทรา109 แขวงบางชัน เขตคลองสามวา กรุงเทพมหานคร 10510
Office space for rent Ram Intra 109 (Phraya Suren)
2 buildings available, interested contact Chalit 📞0626953642 Line ID: chalit3759
1. Building AB, 3rd floor available, total area 861 sq m.
Can be rented separately according to the plan)
2. Building F (rent the whole floor), 2nd-4th floors available,
348 sq m per floor, same conditions as Building AB
1 parking space per 100 sq m of rental space
(If exceeding the rights, there is a monthly parking space rental fee,
indoor 1,500 baht per car, outdoor 1,000 baht
Electricity fee 8.5 baht/unit, water fee lump sum
There is an elevator service fee, average with other tenants
If agreeing to sign a contract, the tenant takes the contract to pay stamp duty,
calculated at 1,000 baht per million
You can make an appointment to view every day except Wednesday
Ram Intra 109 (Phraya Suren) 办公空间出租
两栋楼可用,有意者请联系 Chalit 📞0626953642 Line ID: chalit3759
1. AB 栋,三楼可用,总面积 861 平方米。
(可根据平面图单独出租)
2. F 栋(整层出租),二至四楼可用,
每层 348 平方米,条件与 AB 栋相同
每 100 平方米租赁空间配 1 个停车位
(如超出使用权,则需支付月租车位费,
室内每辆车 1,500 泰铢,室外 1,000 泰铢
电费 8.5 泰铢/单位,水费一次性支付
电梯服务费与其他租户平均
如同意签订合同,租户需凭合同缴纳印花税,
按每百万 1,000 泰铢计算
除周三外,每日均可预约看房
#officespaceรามอินทรา
#officeรามอินทรา109
#officeพระยาสุเรนทร์
#officeให้เช่า
#officeให้เช่ารามอินทรา
#officeให้เช่ารามอินทรา109
#ให้เช่าโกดังกรุงเทพกรีฑา
#ให้เช่าโกดังสุวรรณภูมิ
#ให้เช่าโกดังพัฒนาชนบท4
#ให้เช่าโกดังรามคำแหง-พระรามเก้า
#ให้เช่าโกดังกรุงเทพกรีฑาตัดใหม่
#ให้เช่าโกดังถนนร่มเกล้า-ลาดกระบัง
#ขายที่ดินและโชว์รูมพระราม9
#ขายที่ดินสวนหลวง
#ขายที่ดินเพื่อการลงทุน
#ขายที่ดินราคาถูก
#ขายที่ดินพัฒนาการ
#ขายที่ดินรามคำแหง
#ให้เช่าทาวน์เฮาส์MRTห้วยขวาง
#ให้เช่าทาวน์เฮาส์ห้วยขวาง
#ให้เช่าบ้านMRTห้วยขวาง
#ให้เช่าบ้านห้วยขวาง
#ให้เช่าบ้านสุทธิสาร
#ให้เช่าบ้านรัชดา
#ให้เช่าทาวน์สุทธิสาร
#ให้เช่าทาวน์เฮาส์พาทิโอพหลโยธินวิภาวดี
#ให้เช่าทาวน์เฮาส์พหลโยธิน
#ให้เช่าทาวน์เฮาส์วิภาวดี
#ให้เช่าโฮมออฟฟิต4ชั้น
#ให้เช่าโฮมออฟฟิตลาดพร้าวรัชดา
#ให้เช่าโฮมออฟฟิตเลี้ยงสัตว์ได้
#ให้เช่าโฮมออฟฟิตมีลิฟท์
#เลี้ยงสัตว์ได้
#โฮมออฟฟิต4ชั้นมีลิฟท์
#ให้เช่าบ้านห้วยขวาง
#ให้เช่าบ้านรัชดา
#ให้เช่าบ้านเลียบด่วน
#ให้เช่าบ้านลาดพร้าว
#ให้เช่าบ้านเกษตรนวมินทร์
#ให้เช่าบ้านโยธินพัฒนา
#ให้เช่าบ้านคริสตัลวิลล์\
#ให้เช่าบ้านโชคชัย4
#ให้เช่าบ้านนาคนิวาส
#ให้เช่าบ้านวังหิน
#ให้เช่าบ้านเศรฐสิริแจ้งวัฒนะ
#ให้เช่าบ้านหลังมุม
#ให้เช่าบ้านประชาชื่น
#ให้เช่าบ้านแจ้งวัฒนะ
#ขายบ้านเดี่ยวลาดพร้าว101
#ขายบ้านเดี่ยวบางกะปิ
#ขายHomeOfficeลาดพร้าว101
#ขายHomeOfficeบางกะปิ
#ขายHomeOfficeลาดพร้าว101
#ให้เช่าโกดังกรุงเทพกรีฑา
#ให้เช่าโกดังร่มเกล้า
#ให้เช่าโกดังสุวรรณภูมิ
#ให้เช่าโกดังกรุงเทพกรีฑาตัดใหม่
#ให้เช่าโกดังลาดกระบัง
#ให้เช่าโกดังสายไหม
#ให้เช่าโกดังติดถนนใหญ่
#ให้เช่าโกดังเทพารักษ์
#ให้เช่าโกดังสมุทรปราการ
#ให้เช่าโกดังสุวรรณภูมิ
#ให้เช่าอาคารสำนักงานลาดพร้าว
#ให้เช่าอาคารสำนักงานบางกะปิ
#ให้เช่าอาคารสำนักงาน6ชั้น
#ให้เช่าอาคารสำนักงานมีลิฟท์
#ให้เช่าโกดังโพธิ์แก้ว
#ให้เช่าโกดังลาดพร้าว101
#ให้เช่าโกดังเลียบด่วนรามอินทรา
#ให้เช่าโกดังนวมินทร์
#ให้เช่าโกดังลาดพร้าว
#ให้เช่าโกดังสายไหม
#ให้เช่าโกดังออเงิน
#ให้เช่าโกดังสุขาภิบาล5
#ให้เช่าโกดังสร้างใหม่
#ให้เช่าโกดังกรุงเทพกรีฑา
#ให้เช่าโกดังสุวรรณภูมิ
#ให้เช่าโกดังถนนพัฒนาชนบท3
#ให้เช่าโกดังถนนกาญจนาภิเษก ซอย25
ติดต่อนัดดู หรือขอรายละเอียดเพิ่มเติม ที่ชลิต
รับฝากขาย บ้าน อาคารพาณิชย์ คอนโด ที่ดิน และ อสังหาทุกชนิด
สนใจติดต่อ ชลิต 📞062-6953642 Line ID : chalit3759














