🔥 LL612 | ให้เช่า สำนักงาน–โชว์รูม 2 ชั้น ติดถนนประชาชื่น ติดทางด่วนศรีรัช ทำเลพรีเมียม พร้อมที่จอดรถ 12 คัน 🔥
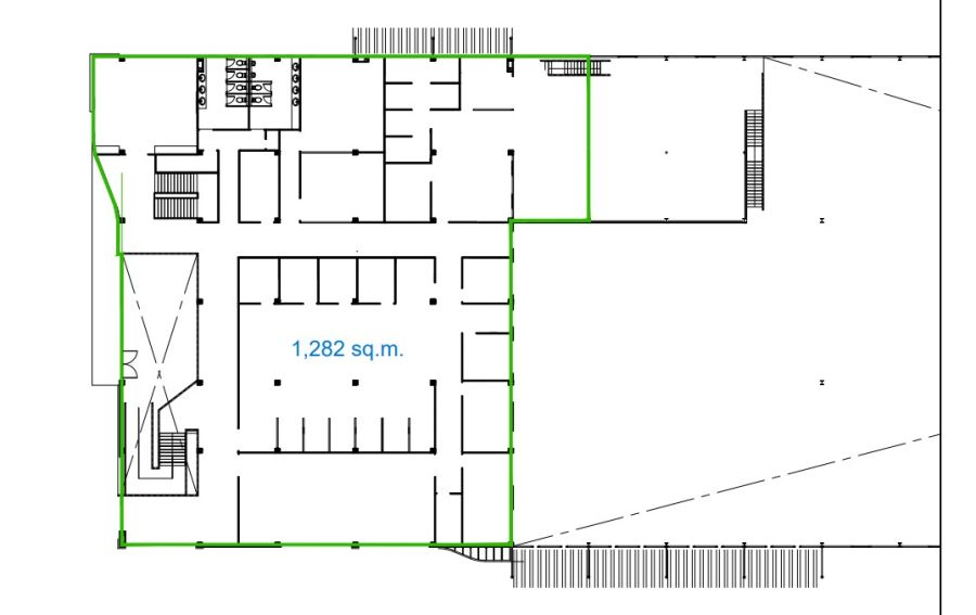
พื้นที่ใช้สอยรวม 1,282 ตร.ม | เพดานสูง 3–5 ม. | ค่าเช่าเพียง 280 บาท/ตร.ม
📍 พิกัด: ถนนประชาชื่น – วงศ์สว่าง – บางซื่อ กรุงเทพ
หนึ่งในทำเล “รอบเมือง – เข้าถึงง่ายที่สุด” เชื่อมต่อทุกเส้นทางธุรกิจ ทั้งงามวงศ์วาน, ประชานุกูล, รัชดาฯ, แจ้งวัฒนะ และเข้าเมืองได้อย่างรวดเร็ว
________________________________________
✨ จุดเด่นที่สุดของทรัพย์ – ตอบโจทย์บริษัทที่ต้องการภาพลักษณ์ดี
• อาคารโชว์รูมหน้าใหญ่ ติดถนนประชาชื่นโดยตรง
มองเห็นชัดจากถนน ช่วยสร้างแบรนด์และความน่าเชื่อถือได้ทันที
• ติดทางด่วนศรีรัช เพียงไม่กี่สิบเมตร
ลูกค้า–พนักงานเดินทางง่ายมาก รองรับความคล่องตัวของธุรกิจทุกประเภท
• อาคารดูดี หรู เรียบร้อย พร้อม Layout แบบโครงสร้างสำนักงานอย่างเต็มรูปแบบ
________________________________________
📌 รายละเอียดพื้นที่
พื้นที่ใช้สอยรวม 1,282 ตร.ม (2 ชั้น)
ชั้น 1:
• โซนโชว์รูมกระจกมองเห็นจากถนน
• เพดานสูง 3–5 เมตร ให้ความหรูหรา ทันสมัย
• สามารถจัดเป็นโซนต้อนรับ + พื้นที่โชว์สินค้า + พื้นที่สำนักงานด้านหลัง
• ห้องน้ำโซนชั้นล่าง
• มีบันไดเลื่อนขึ้นชั้น 2 (กลายเป็น Rare Item สำหรับออฟฟิศ)
ชั้น 2:
• เจ้าของเดิมกั้นห้องไว้หลายห้อง
👉 สามารถใช้เป็น แผนกต่างๆ / ห้องผู้บริหาร / ห้องประชุม / ห้องบัญชี / คลังเอกสาร
• ห้องน้ำในตัวชั้น 2
• เหมาะกับบริษัทที่ต้องแบ่งฟังก์ชันชัดเจน
ที่จอดรถส่วนตัว 12 คัน
ถือว่าเยอะมากสำหรับโซนประชาชื่น–วงศ์สว่าง
________________________________________
เหมาะสำหรับธุรกิจประเภทใด?
✔ บริษัทต้องการโชว์รูม + ออฟฟิศ เช่น
• รถยนต์ไฟฟ้า
• เฟอร์นิเจอร์ – งานตกแต่ง
• เครื่องใช้ไฟฟ้า
• แบรนด์สินค้าไลฟ์สไตล์
✔ ออฟฟิศบริษัทที่ต้องการภาพลักษณ์ดี
✔ ศูนย์บริการ–ศูนย์เทรนนิ่ง
✔ บริษัทโลจิสติกส์ที่ต้องการสำนักงานใกล้ทางด่วน
✔ คลินิกความงาม / สถาบันเสริมความงาม (พื้นที่กั้นห้องพร้อม)
________________________________________
💰 เงื่อนไขค่าเช่า
• อัตราค่าเช่า: 280 บาท/ตร.ม
• ค่าไฟ: 7 บาท/ยูนิต
• ค่าน้ำ: 20 บาท/ยูนิต
• ประกัน 3 เดือน + ล่วงหน้า 1 เดือน
• สัญญา 3 ปี
________________________________________
📞 สนใจนัดชม ติดต่อโดยตรง
รหัสทรัพย์ : LL612
👤 คุณต๋อง สุริยา
📞 โทร/ไลน์ : 📞096-824-9454
🔗 LINE : 🌐https://line.me/ti/p/QoIFyqeH48


















